A house with a dark gray roof and white walls, surrounded by a garden with colorful flowers and small trees, under a partly cloudy blue sky.

Bungalov HJEMME

Ekologický dom s južne orientovanou záhradou, premysleným rozdelením priestorov a zelenou strechou vytvára pokojné, prirodzené bývanie. Každý dom navrhujeme na mieru podľa vašich predstáv.

A black and white cartoon dog with floppy ears and a fluffy tail, sitting upright.
A black map outline of the United States with white state borders.

3 spálne

2 kúpelne

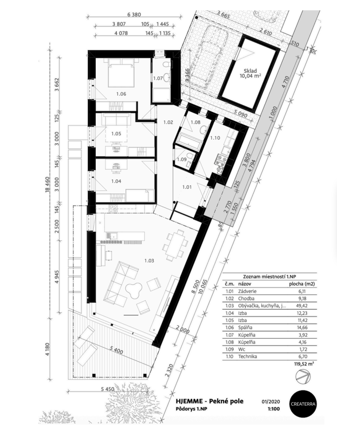
119 m2

od 342 220 €

Two cats sleeping curled up together on a blanket.
A black-and-white illustration of a cat's face with triangular ears, almond-shaped eyes, and whiskers.

Dom je navrhnutý tak, aby prirodzene nadväzoval na svoj pozemok a vytváral harmonický priestor pre pokojný každodenný život. Južná orientácia, veľká záhrada a premyslené členenie interiéru podporujú pocit rovnováhy, súkromia a spojenia s prírodou.

Architectural floor plan of a house showing various rooms, measurements, and layout details, with a legend listing room names and sizes.
    • maximálna plocha záhrady vďaka premyslenému umiestneniu domu na pozemku

    • prestrešená terasa s odhaľeným trámovým stropom z pohľadového masívneho dreva a podľahou zo sibírskeho smrekovca

    • exteriérové žalúzie v cene

    • zelená strecha (v rámci celej jej plochy vrátane terasy)

    • spevnené plochy pre 3 parkovacie miesta + chodník k vstupným dverám

    • plot od ulice + posuvná brána s bráničkou v štandarde

    • technická miestnosť s integrovanou kompaktnou jednotkou s funkciou rekuperácie tepla, vykurovania a chladenia vzduchu a ohrevu teplej vody

    • veľké drevo-hliníkové okná SMARTWIN navrhnuté špeciálne pre nízkoenergetické domy | Hoblina

    • zo stolárskych prác je súčasťou štandardu interiérové prvky z bieleho jaseňa

    • vstupné bezpečnostné dvere Smartwin entrance Hoblina

Close-up of a doorframe with a rough textured edge and wooden surface, casting shadows from sunlight.

Technické parametre

Staviame tak, ako by sme stavali pre seba. Poctivo, s dôrazom na kvalitu spracovania a materiálov. Každý technický detail má svoje miesto – od konštrukcie až po posledný spoj.

Stacked wooden crates outdoors against a partly cloudy sky.
Text graphic with the message: "Dom, ktorý si na seba zarába sám." in Slovak, on a black background with beige and brown speech bubble-style shapes.

Dom v pasívnom štandarde A0+ u nás nevzniká preto, že musí, ale preto, že nám to dáva zmysel.

HJEMME je koncept zdravého bývania,v ktorom sa stretáva dôraz na prírodné materiály, vysoký štandard vyhotovenia a snaha prinášať optimalizované architektonické riešenia inšpirované bioklimatickou architektúrou. 

Black outline of a human head with a lightbulb inside it, symbolizing an idea or thinking.

Základy pozostávajú z betónovej dosky kompletne izolovanej penosklom do pasívneho štandardu. Hlavnú konštrukciu domu tvoria dreveno-slamenné panely EcoCocon spĺňajúce najprísnejšie normy vrátane certifikátov Passivhaus a Cradle to Cradle. Pre lepšiu tepeľnú ochranu na panely pridávame vrstvu prírodnej drevovláknitej izolácie STEICO. Následne je celá konštrukcia zahalená do difúzne otvoreného vzduchotesného obalu. Strecha je s dreveným krovom izolovaná 40 cm vrstvou fúkanej celulózy. 

Graphic displaying energy savings with a label reading '2411 kWh' and text in Slovak saying 'annual energy savings'
Illustration of a person with wings, standing on a ladder, reaching towards a crescent moon in a night sky with stars.

Dom je omietnutý difúzne otvorenou vodoodpudivou silikónovou omietkou SILCO K od nemeckej firmy Sto. Čierne pálené škridle pochádzajú od slovenského výrobcu Tondach, model Planoton. Vonkajší drevený obklad domu v obývačkovej časti Plochá časť strechy je zazelenená sukulentami. 

An angelic figure with wings and a halo, holding a sword and a shield, standing on a globe with angelic figures around.

Používame dreveno-hliníkové okná SMARTWIN s trojsklo a s najlepšími možnými teplotechnickými parametrami od slovenskej firmy Hoblina. Okná sú vyvinuté špeciálne pre nízkoenergetické a pasívne domy. Pre odfiltrovanie adbytočných slnečných ziskov počas leta je vonkajšia strana okien vybavená elektrickými žalúziami.

Icon of a washing machine with three wavy lines indicating spinning or washing cycle.

Funkcie vetrania s rekupráciou tepla, vykurovania, chladenia vzduchu a ohrevu teplej vody sú zabezpečované integrovanou kompaktnou jednotkou PKOM 4 Classic od rakúskej firmy Pichler. Táto obsahuje dve tepelné čerpadlá a má maximálny výkon 1,3 kW pre ohrev a ochladzovanie vzduchu a 1,6 kW pre ohrev vody. Má vyše 88%-tnú účinnosť spätnej rekuperácie tepla a zabudovanú filtráciu F7 pre zdravú mikroklímu. Vie zabezpečiť hygienickú výmenu vzduchu až pre 7 osôb a je držiteľom certifikátu od nemeckého Passivhaus Institut.